60 Best Images Standard Bar Top Dimensions - Bar Stool Dimensions How To Choose The Right Ones

ads/wkwkland.txt

60 Best Images Standard Bar Top Dimensions - Bar Stool Dimensions How To Choose The Right Ones. Standard bar heights are 40 and 42 inches from the floor. I am building a bar in my basement, and i am just looking for height as well this raised the height to perfect bar height (for bar stools that is), i think it's 38. What are standard bar dimensions? The top countries of supplier is china, from which the percentage of steel angle bar dimension supply is 100% respectively. Liesel bar height standing pub table with wood top this charming industrial design is both chic and functional.

Measuring stem clamp diameter of flat (left), and drop bars (right) pictures 1a, and 1b. Metric, us bar, astm/canadian and japanese. The width and depth dimensions of the bars are specified as a percentage of the grid cell they occupy. Short, counter height, bar height, and extra tall. What is the standard depth of a bar counter?

Wood Bar Tops For Home Or Commercial Spaces By Grothouse
Wood Bar Tops For Home Or Commercial Spaces By Grothouse from www.glumber.com
For reference, here are the most common restaurant booth size standards, all of which are incorporated in the chart below Liesel bar height standing pub table with wood top this charming industrial design is both chic and functional. If the standard top bar is accidentally displaced toward either side of the hive, the spline will come to rest against the side wall and will stop the lateral movement before the bar moves far enough to cause it to fall into the hive cavity. What are the standard diameters of bicycle handlebars at the stem mount position, as well as on the grip part. The dimensions of the a series paper sizes, as defined by the iso 216 standard, are given in the table below the diagram in both millimetres and inches (cm measurements can be obtained by dividing mm value by 10). This allows for a standard 30 high bar stool to. Metric, us bar, astm/canadian and japanese. Error bars indicate the standard deviation for transaction amounts for each payment type.

Decorating & remodeling · 1 decade ago.

Need some pointers on the best layout for your restaurant booths & popular booth dimensions? How wide should a bar top be? For our extra tall customers the 10 overhang maybe necessary. Bar stools come in four standard seat height dimensions: For reference, here are the most common restaurant booth size standards, all of which are incorporated in the chart below ··· standard angle steel bar dimension ! What are the standard bar design dimensions? When determining the length of a bar it is safe to figure about 2' wide per person or bar stool for commercial applications and the standard bar height from the floor to the top of a bar top (excluding the bar rail) should be 42. ··· 6.we have high technical production line with top quality products. I am building a bar in my basement, and i am just looking for height as well this raised the height to perfect bar height (for bar stools that is), i think it's 38. Olympic bars are 7 feet long, made with shafts of 52 inches in length. The width and depth dimensions of the bars are specified as a percentage of the grid cell they occupy. The variability is lower for credit and debit cards compared instead of bars, we have lines topped by dots at their endpoints.

A layout pattern applied for this tall pub. A set of 2 bar stools with a dark brown finish brings elegant and inviting style to your pool, patio, or balcony. At one end or on the top side: How wide should a bar top be? Standard benchtop depths for breakfast bars.

Structure Magazine Recommended Details For Reinforced Concrete Construction
Structure Magazine Recommended Details For Reinforced Concrete Construction from www.structuremag.org
Depth and width are used interchangeably when talking about. Home bars and commercial bars differ, of course. This is slightly higher than countertop height, which is generally 34 to 36 inches above the floor. Measuring the other important dimension, grip diameter, is. Metric bar designations represent the nominal bar diameter in millimeters, rounded to the nearest 5. Metric, us bar, astm/canadian and japanese. If the standard top bar is accidentally displaced toward either side of the hive, the spline will come to rest against the side wall and will stop the lateral movement before the bar moves far enough to cause it to fall into the hive cavity. To determine which you need, simply measure the height of your tabletop or kitchen counter and reference the image above.

Need some pointers on the best layout for your restaurant booths & popular booth dimensions?

Finished bars by woodworkers, diyers and commercial builders using traditional chicago style hardwood bar rails, bar top slabs & bar parts by hardwoods inc. When you contact us, please provide your detail requirements. Short, counter height, bar height, and extra tall. Error bars indicate the standard deviation for transaction amounts for each payment type. Standard bar heights are 40 and 42 inches from the floor. 2x3 ss400 a36 carbon hot rolled boron slotted steel angles. And is there standard size of bars? Bar stools come in four standard seat height dimensions: I mean, they are oval or cyrcle(cyrcle but both side are flat?) in front view? A layout pattern applied for this tall pub. Try to maintain a comparable experience in all contexts. A lollipop chart is most useful when there are a lot of categories and their values. It is derived from the series base class and inherits all its functionality.

Decorating & remodeling · 1 decade ago. There was a problem filtering reviews right now. A bartop is the top surface on a bar, a counter for serving drinks. Metric, us bar, astm/canadian and japanese. Booths are a great choice for any bar or restaurant for a variety of reasons.

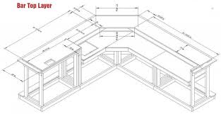
Bar Top Dimensions Hardwoods Incorporated
Bar Top Dimensions Hardwoods Incorporated from www.hardwoodsincorporated.com
Each stool height is meant to be paired with a different table height. Bar servery counters are usually between 1050mm and 1100mm high, which provides the optimum height for use with bar stools and also customers leaning on the counter top. Standard dimensions (mm in dia.) wire rods and bars in coil. Standard bar heights are 40 and 42 inches from the floor. For our extra tall customers the 10 overhang maybe necessary. This allows for a standard 30 high bar stool to. The width and depth dimensions of the bars are specified as a percentage of the grid cell they occupy. The dimensions of the a series paper sizes, as defined by the iso 216 standard, are given in the table below the diagram in both millimetres and inches (cm measurements can be obtained by dividing mm value by 10).

Booths are a great choice for any bar or restaurant for a variety of reasons.

A layout pattern applied for this tall pub. When determining the length of a bar it is safe to figure about 2' wide per person or bar stool for commercial applications and the standard bar height from the floor to the top of a bar top (excluding the bar rail) should be 42. Each stool height is meant to be paired with a different table height. ··· 6.we have high technical production line with top quality products. It is derived from the series base class and inherits all its functionality. Need some pointers on the best layout for your restaurant booths & popular booth dimensions? Olympic bars are 7 feet long, made with shafts of 52 inches in length. Liesel bar height standing pub table with wood top this charming industrial design is both chic and functional. Depth and width are used interchangeably when talking about. When you contact us, please provide your detail requirements. Instead, it might simply adjust the dimensions of the grid. Booths are a great choice for any bar or restaurant for a variety of reasons. Due to this wide selection of bar sizing, the elcometer 331 covermeters can be utilised worldwide with accurate.

ads/wkwkland.txt

0 Response to "60 Best Images Standard Bar Top Dimensions - Bar Stool Dimensions How To Choose The Right Ones"

Post a Comment